Independent Exclusive
Shout
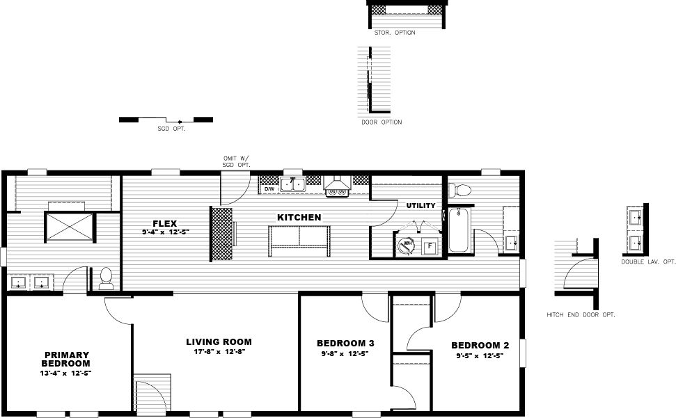
3 beds / 2 baths / 1,493 sq.ft. / 28x56
Floor plan
Photo gallery











*The home series, floor plans, photos, renderings, specifications, features, materials and availability shown will vary by retailer and state, and are subject to change without notice.
