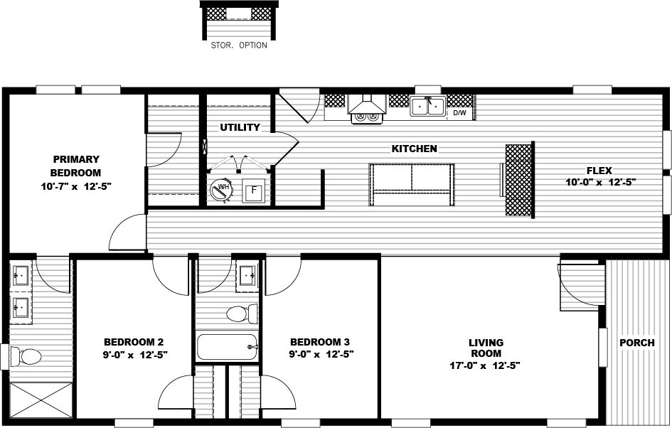
Johnny B Goode
3 beds / 2 baths / 1,306 sq.ft. / 28x52
Floor plan
Photo gallery









*The home series, floor plans, photos, renderings, specifications, features, materials and availability shown will vary by retailer and state, and are subject to change without notice.
