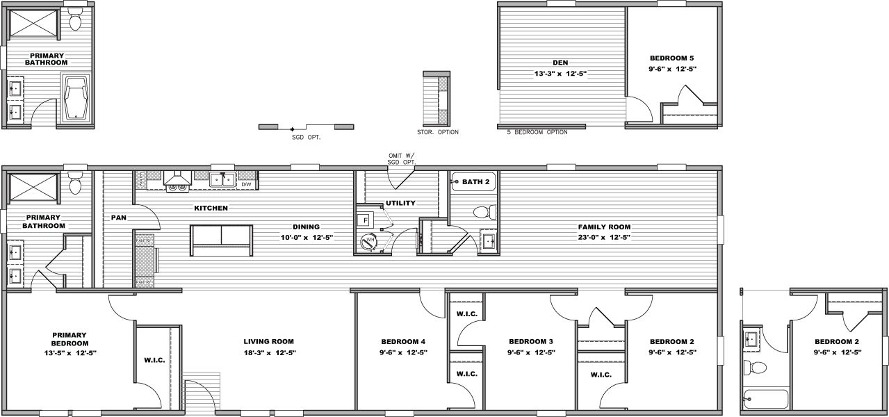
Echo
4 beds / 2 baths / 2,001 sq.ft. / 28x76
Floor plan
Photo gallery

*The home series, floor plans, photos, renderings, specifications, features, materials and availability shown will vary by retailer and state, and are subject to change without notice.
